
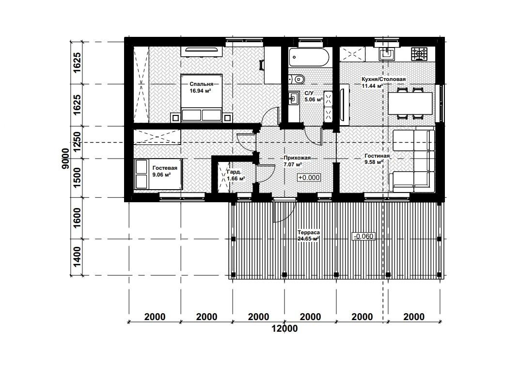
Общая площадь: 72 м²
Габариты: 6 х 12 м
Количество спален: 2
Количество санузлов: 1
Стандарт | Комфорт + | |
|---|---|---|
Фундамент | • Винтовые сваи 108х2500мм | • Винтовые сваи 108х2500мм |
Основание | • Первый ряд – брус 150х150мм • Второй ряд – доска калиброванная 40х150мм | • Первый ряд – брус 200х150мм • Второй ряд – доска калиброванная 40х190мм |
Перекрытия пола (лаги) | • Доска калиброванная 40х150мм, шаг 630мм по осям | • Доска калиброванная 40х190мм, шаг 630мм по осям |
Черновые полы | • Доска обрезная 20х100мм | • Доска обрезная 20х100мм |
Каркас наружных стен | • Вертикальные стойки, прогоны, обвязки – доска калиброванная 40х150мм, шаг 630мм по осям • Укосы – Доска калиброванная 20х90мм доска | • Вертикальные стойки, прогоны, обвязки – доска калиброванная 40х190мм, шаг 630мм по осям • Укосы – Доска калиброванная 20х90мм доска |
Перегородки | • Вертикальные стойки, прогоны, обвязки – доска калиброванная 40х100мм, шаг 630мм по осям • Укосы - Доска 20х90мм доска | • Вертикальные стойки, прогоны, обвязки – доска калиброванная 40х140мм, шаг 630мм по осям • Укосы - Доска 20х90мм доска |
Стропильная система | • Доска калиброванная 40х140мм, шаг 630мм по осям | • Доска калиброванная 40х190мм, шаг 630мм по осям |
Кровля | • Профлист, 0,45мм | • Металлочерепица, 0,5мм |
Обрешетка кровли | • Обрешетка под волну – Доска 25х100мм с шагом 300–350 мм • Контробрешетка – Брусок 30х40мм по стропилам | • Обрешетка под волну – Доска 25х100мм с шагом 300–350 мм • Контробрешетка – Брусок 30х40мм по стропилам |
Подкровельная мембрана | • Изоспан АМ | • Ondutiss |
Ветрозащита | • Мембранная пленка | • Мембранная пленка |
Фасад | • Имитация бруса 20х140мм, класс АВ | • Имитация бруса 20х140мм, класс АВ |
Вентиляция фасада | • Обрешетка из рейки 30х40мм | • Обрешетка из рейки 30х40мм |
Оформление углов | • Доска строганная 20х140мм | • Доска строганная 20х140мм |
Оформление лобовых досок | • Имитация бруса 20х140мм, в две доски | • Имитация бруса 20х140мм, в две доски |
Окна | • Однокамерные ПВХ Rehau 60мм, цвет белый, размеры согласно проекту | • Двухкамерные ПВХ Rehau 70мм, цвет белый, размеры согласно проекту |
Входная дверь | • Металлическая производство Россия | • Металлическая с терморазрывом производство Россия |
Вентиляционный зазор | • Рейка 30х40мм | • Рейка 30х40мм |
Чистовой пол | • ЦСП 12мм по обрешетке из доски 20х140мм с шагом 300мм | • ЦСП 12мм по обрешетке из доски 20х140мм с шагом 300мм |
Стены и перегородки | • Евровагонка В класса | • Евровагонка АВ класса |
Потолки | • Евровагонка В класса | • Евровагонка АВ класса |
Утепление перекрытий | • Плиты 150мм | • Плиты 200мм |
Утепление наружного контур | • Плиты 150мм | • Плиты 200мм |
Утепление перегородок | • Плиты 100мм | • Плиты 150мм |
Пароизоляция | • Пленка 200 мкм | • Пленка 200 мкм |
Терраса | • Строганная доска 40х100мм с зазором 5мм | • Лиственица 40х100мм с зазором 5мм |
Итого | 3 687 000 р Ипотека с эскору 4 240 050 р | 4 156 000р Ипотека с эскору 4 779 400 р |
На этот и любые другие вопросы
Вам ответит наш руководитель по логистике.